东叁金茂府

城市核心资源是孕育顶级项目的温床,对不可复制地段和珍稀资源的占有,从来都是置业的首要法则。
在选址上,东叁金茂府完全符合金茂府系作品的核心择址观:核心城市、核心土地、核心资源、高净值人群集聚,择址北京经济、商业发展中心的“一轴一区”东三环CBD,让分钟寺摇身一变,成为CBD首席配套居住区。东叁金茂府为高光进取的而立精英兑现一座CBD东叁国际住区,拉升区域价值,驱动板块配套设施、人群构成、生活方式等全面升级,重构CBD生活样本。
而越是满足金茂府系产品择址观的土地,就越发珍贵。集中供地背景下,东五环项目单价一度攀升至8-9万/㎡,东三环土地的稀缺价值日益凸显,东叁金茂府所立足的约1.7平方公里东叁国际住区,正是东三环沿线目前唯一面积以平方公里计的“先规划后建设”土地,CBD不可复制的内城生活资源,成为了资产保值增值的关键要素。
2020年5月,合生豪掷180亿拿下分钟寺三宗涉宅用地,楼面价破7万,三环+国贸的地段,激活了北京豪宅市场。我们2020年也介绍过东叁金茂府的介绍,今天再详细介绍一下(分钟寺豪宅(东叁金茂府)北京的第七座金茂府,致敬国贸CBD)

2021,是跌宕起伏的一年,对于北京房地产市场而言,更是前所未有的“大考年”——政策紧箍咒加码、房企流动性危机、市场高开低走,“活下去”成了很多房企的首要使命。
在普遍承压的市场环境中,东叁金茂府却创造了全年网签66亿+的骄人成绩——2021年1月,东叁金茂府首开2小时认购35亿(非网签额),2021年9月,二次开盘再次认购38亿(非网签额),成功登顶北京单价10万+项目销冠榜单。

项目信息

项目整体规划15栋楼,分南北两区,北区7栋楼,南区8栋楼,11-25层,2梯2户设计,共计685户,首期推盘北区7栋楼,目前在售南侧地块。
l 项目位置:东三环分钟寺桥,地铁10号线分钟寺站东侧约300米
l 售楼处位置:丰台区南三环东路辅路2-1号
| 开发商:合生创展+中国金茂
| 环线位置:东三环
l 产品类型:住宅
● 产品面积:
(一房一价,具体价格以现场为准)
175㎡南北四居
195㎡南北四居
l 交房时间:预计2024年10月底
l 交房标准:精装交付
l 物业费:物业费11.88,能源费58元每平米/年
物业公司金茂物业
l 总楼栋数/总户数:15栋/685户
l 梯户比:两梯两户
l 水电采暖:科技住宅,恒温恒湿恒氧
l 产权年限:70年
l 绿化率:30%
| 容积率:占地面积:3.84万㎡,建筑面积:16.4万㎡,容积率:2.8
l 层高:东侧一排5栋高层总高25层;北区1#24层、2#14层、3#17层、4#11层、5#14层;南区2#14层、3#14层、4#11层、5#14层、6#16层
l 拿地时间:2020年7月
| 楼间距:30m
| 层高:高层3.15M,洋房3.05M
| 封顶时间:预计21年底-22年3月份,具体以现场释放时间为准
单价:11万
——在售产品:
125㎡南北三居 (售罄)
报价1300万左右(无样板间)
145㎡南北四居 (售罄)
报价1500万左右(无样板间)
175㎡南北四居(可选)
报价1750万左右(无样板间)
195㎡南北四居(可选)
价格:报价2150万左右(有样板间)
(具体价格与房源情况咨询售楼员)
【得房率】75%
【车位配比】 1:1.2
【项目楼栋图】(见下图)
北区7栋楼,南区8栋楼

北区户型分布:
1#总高24层,西边户145平,东边户175平
2#总高14层,中间户125平,边户145 平(两个单元)
3#总高17层,皆为125平
4#总高11层,中间户125平,边户145平(两个单元)
5#总高14层,皆为145平
6#总高25层,西边户145平,东边户175平
7#总高25层,皆为175平

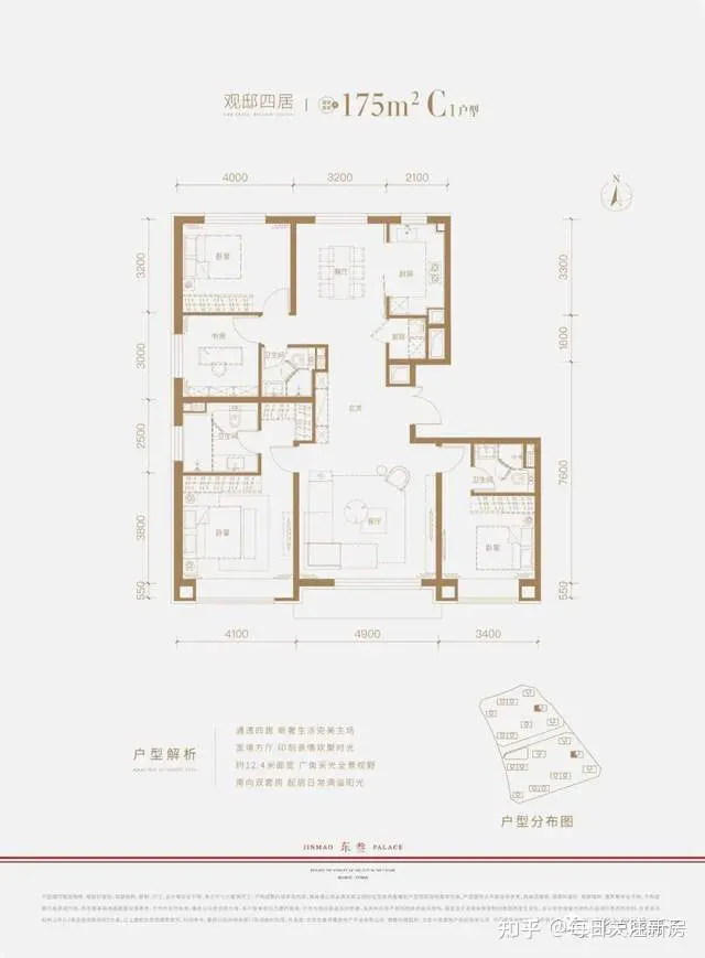
户型介绍
C户型175平米4室2厅3卫:创新地采用了大边厅设计,配以超大L型转角阳台,实现了270度超大环幕采光面,拥有相当于IMAX的观景效果。采用客餐厨一体化设计,方便了一家人聚合;南向主卧、次卧均为套房设计,北向次卧也与卫生间相连,保证了全家庭的生活隐私和舒适性。



D户型195平米4室2厅3卫:超大的南向三面宽,形成宽大的观景面。同时,南向的主卧室和次卧室都配有宽大飘窗。这个户型设计了独立的西厨和中厨,这应该是一个讲求生活丰富性的奢华设计。

样板间
合生·金茂东叁金茂府与爱马仕样板间世界新奢大师曾仕乾先生倾情联袂,基于对时尚和新奢的美学认知,以极简雅致的设计手法,营造了一个不造作、不浮夸、不喧嚣的“新奢”空间;同时合生·金茂东叁金茂府焕新十二大科技系统,引进纳米级离子瀑空气过滤技术,升级舒氧丨舒温丨舒净丨舒静丨舒洁——纳米级五舒健康家,从全感官维度匹配而立精英的新奢居住需求,为其主动创造了一种兼具美感与科技健康的生活方式。
建筑理念
在建筑理念构造上,合生·金茂东叁金茂府以现代艺术传承时代审美语境与精致匠心,汲取中国古典建筑“斗拱昂尖”的建筑符号,探索当代时尚与传统意境的融合表现;在表现手法上,以现代时尚奢侈品的设计手法,打造具备强烈时代审美的“舒展轩昂”立面;引领了金茂府立面体系第三次迭代,直至美学巅峰。
广渠金茂府:第一代金茂府立面
采用Adecco美学立面
复古格子窗经典设计
奠定第一代府系建筑的厚重感建筑基因
广渠金茂府 建筑实景图
北京金茂府:第二代金茂府立面
公建化立面,深咖色金属与石材结合
增大开窗面积,增加通透感
设计理念更现代,强调府系建筑的精致感
北京金茂府 建筑效果图
东叁金茂府:第三代金茂府立面
引入中国传统“斗拱昂尖”元素,国际化铝板幕墙立面
更大开窗尺度,强调现代建筑的时尚感
创新性加入270°转角露台,无界延展室内空间,最大化景观视野
合生·金茂东叁金茂府 建筑效果图
斗拱,中国传统建筑的宝藏。最早记录于两千多年前战国及汉代的壁画上,往往仅为皇室所用,只有极为重要或值得铭记的国家级建筑,才有斗拱的安置。
合生·金茂东叁金茂府 建筑效果图
建筑不是简单的砖瓦堆砌,而是记录文化与时代审美的载体。“斗拱”符号之所以流经千年,就在于它记录着一条城市、人、建筑、艺术等相互融合的美学生命线,东叁基于对这些美好意向和文化精粹的理解,与北京这座古都的历史建筑以文化互相致意,展示出世界潮流与东方艺术的五重共鸣,呈现给城市不同凡响的时代韵味。
大面积玻璃幕墙材质,使建筑显得通透而有质感,舒展飘逸的宽檐,引建筑横向凌空舒展,奠定建筑稳健、典雅的气势,屋顶显得“如鸟斯革,如翚斯飞”。
合生·金茂东叁金茂府 建筑效果图
好的设计,不是贵的设计,而是经过切身感受、细致思量之后,构筑出让人感受到舒适的视觉享受或体验。合生·金茂东叁金茂府,以人的感受作为原点出发考量,精细化打磨建筑,为城市构筑承载思想及情感的文化艺境空间。
科技系统
科技住宅原则 ①
技术服务于设计 设计服务于体验
—
金茂府与其他科技住宅产品不同的是,金茂府真正希望用科技改良业主的生活,绝非仅作为销售噱头和溢价因素,这从金茂府科技住宅的设计细节中足以看出。
空气健康是业主最关心的话题,也是金茂最关注的要素,在东叁金茂府中,业主可以随时呼吸到更新鲜的空气,这要归功于科技体系中更复杂、更重要、科技含量更高的新风系统,东叁金茂府从芬兰引入更尖端的纳米级“除PM1离子瀑净化杀菌系统”,该技术空气净化过滤的粒径可以小到0.0025um,对于PM1的过滤效率高达90%,远高于美国和欧洲标准下的HEAP高效过滤。
离子瀑技术示意图
除了世界尖端的科技技术,产品设计细节同样重要。金茂认为,没有任何混风的房子才是健康住宅的高配,东叁金茂府新风系统坚持选择双通道、直流全新风形式,每个房间均采用下送风/上回风的置换送风技术,新风和排风相互独立运行,在室内形成新风湖,避免交叉混风污染。

金茂新风系统与普通新风系统对比
中国金茂对于绿色生活的追求在东叁金茂府处处都得以体现,东叁金茂府通过四重净水系统,将外界水源进行层层过滤,有效去除管道中杂质及其他细菌,保留对人体有益的微量元素和矿物质,保证每滴用水更加纯净健康,有效预防病从口入。
软水,对健康生活非常重要,堪称女主人的美容佳品,软水洗浴不仅能祛除毛孔中的角质,令皮肤光滑、细嫩,且保湿效果好,护肤用品更易吸收。同时使用软水可以保持餐具、瓷器光洁如新,延长家用电器的使用寿命,用软水洗涤衣物,衣服也将会变得更加蓬松、艳丽明亮。
科技住宅原则 ②
客户利益是第一优先级
—
适宜的温湿度也是检验好房子的重要标准,金茂健康居住的另一张王牌则是毛细管网系统与地源热泵的结合。地源热泵技术利用将百余米的U形管环系统埋在地下,实现与大地土壤冷热量的交换,并通过铺设在室内的毛细管网系统,24小时持续柔和的调节室温,让室内温度夏季保持在24~26℃上下,冬季保持在20~22℃上下,对比传统的地暖、空调等,具备散热均匀、体感舒适、绿色节能等优势。

毛细管网系统示意图
但不为人知的,地源热泵的落地相当困难,受到城市地铁建设、市政供暖、政府住宅限价等诸多因素限制,耗费难以计数的人力物力;而埋设在墙壁中的毛细管网系统和室内设计的美观经常存在矛盾,以东叁金茂府为例,室内设计方案经过了99次的反复修改,最终才以业主的利益为优先考虑,找到实用性和新奢美学的共存方式。
北京广渠金茂府能源机房
金茂在科技系统的设计、研发与落地中,付出了极大的成本,为避免影响居住体验,社区绿建运营机房需远离楼体,占据地下空间,后期由专业团队进行系统运维及技术支持,耗资上百万只为业主未来能安心居住。
周边配套
周边交通
地铁:项目距离地铁10号线分钟寺站约200米,四站到达国贸。从10号线换乘1号线、5号线、6号线、7号线、14号线等多条地铁线路,可到达北京各个城区核心商圈。另外,项目周边还规划有地铁17号线,未来向北直达未来科学城,向南直通亦庄新城。
自驾:该项目紧邻三环,自驾可直达国贸商圈(约6km);距离最近的高速为京沪高速,直线距离不足700米。
公交:项目周边的公交车站点众多,距离352路分钟寺站约127米,可以乘坐此线路抵达旧宫、劲松等板块;项目距离25/93/665路成寿寺路站约808米,可以抵达望京、北京南站等板块。
周边商业
项目周边8km范围内覆盖商圈:
购物中心:新业广场(相距约1.5km)、方庄购物中心(相距约4.8km)、北京富力广场购物中心(相距约6.2km)、合生汇(相距约6.9km)、国贸商圈(相距约7.4km)。
周边教育
项目2km范围覆盖多个学校:
公立学校:分钟寺小学(距离约500m)、成寿寺小学(距离约900m)、北京市第八十中学(小红门分校,距离约900m)、北京市第十八中学(左安门分校,距离约1.1km)、北京工业大学附属中学(距离约2.2km);另外,后期政府规划引进如首师大附中,首师大附小,北师大附中等重点学校。
周边医疗
项目3km内覆盖医疗配套:
三甲医院:北京中医药大学东方医院(距离约2.4km)、中国医学科学院肿瘤医院(距离约2.4km)。
综合医院:北京中科建都医院(在建中,距离约800m)、北京市朝阳区三环肿瘤医院(距离约900m)、十里河医院(距离约1.7km)、北京市丰台区铁营医院(距离约2.8km)。
周边公园
项目3km范围覆盖公园:
清风园公园:距离项目仅600多米,适合亲子游玩、跑步健身。
方庄体育公园:距离项目约2.8km,公园内设有篮球场等多种运动设施,方便附近居民进行体育锻炼活动。
松榆里公园:距离项目约2.8km,公园突出了休闲、娱乐、文化、健身功能,建成了由紫滕广场、漫舞天地、康体乐园、休闲驿站组成的整体面积近11000平米的文化广场,提供了优质休息运动环境。
龙潭公园:距离项目约3.4km,是一座皇家园林风格的公园,公园内不定时会有演出,适合带孩子游玩。
另外,项目东侧规划了45万平米城市绿海和3.5万平米运动公园。
未来升值
2017年底,《北京城市总体规划(2016年—2035年)》发布,确定北京未来向东、东南和南三个方向发展,其中东南向最有看点。
2018年分钟寺村列入北京市棚户区改造及环境整治计划;
2019年,回迁安置房项目进入签约阶段。
棚改后的分钟寺区域规划总占地面积约21.04公顷,包含11个地块。
除了3个住宅用地,还有3个教育用地、1个医疗卫生用地、1个行政办公用地、1个供电用地和1个绿地。
分钟寺村规划图
2020年9月初,《首都功能核心区控制性详细规划(街区层面)(2018年—2035年)》公布,宣告“中央政务区”正式诞生。北京也正式划分为,首都功能核心区的区内与区外。三环以里,首都功能核心区成为国家的决策中心,是整个国家的大脑,区内实行减量发展。五环里的中心城区都将以限制性发展为主,唯有五环外以加法式发展。
1.建设规划限制 四环内稀缺地块
自2018年北京《建设项目规划使用性质正面和负面清单》明确提出“限制四环以内的各类用地调整为住宅商品房用地”以来,北京宅地供应逐步导向近郊区。2020年成交的37宗宅地中,位于四环内的仅有分钟寺这3宗。地理位置的稀缺难以复刻
2.位于东三环黄金轴与中央商务区 “一轴一区”的起点
2008年,国贸三期拔地而起(高330米)成为北京最高建筑;2018年,中国尊才取代国贸三期,将北京的身高刷新至528米,宣告首都新一座地标诞生。他们统统矗立在北京最为世界瞩目的东三环中央商务区。
东三环的CBD不仅有北京最高的楼,还拥有北京最多的财富。数据显示,2019年北京CBD内外资企业超1万家,占全市近1/3。汇集世界500强238家,跨国公司地区总部89家,占全市50%,国际金融机构过百家,占全市的70%。
此外,东三环还有最具时尚感的燕莎商圈和三里屯社区,是北京最世界的主轴,是每一个年轻有梦想人的期许之地。分钟寺板块就位于东三环的起点。
3.是首都功能核心区与北京城区的中轴
分钟寺紧贴首都功能核心区的东三环分钟寺板块,成为北京发展的超级中轴,向内可承接国家中枢,尽享政治中心、文化中心的丰裕溢利,向外则可辐射拓展更广阔的商业、产业版图,占有最顶级、最领先的发展机遇。
4.是首都城市圈发展的龙头
在京津冀协同发展战略和北京最新城市总体规划政策下,北京东南飞已是既定事实。与京津发展轴完美重合的京沪高速路G2,不仅是京津发展的产业走廊,还连接着中国三大直辖市,影响力举足轻重。
楼市资本论可以预见的是,未来分钟寺板块不仅在北京域内发展分量极重,在京津冀乃至与长三角城市群的融合交流中也将释放出不凡动能。
分钟寺的规划定位 CBD国际生态区
分钟寺是内城最后一块集中先规划后开发的地块,1.7平方公里的规划用地,由“地产航母”合生创展,在一个月内击退中海、融创等北京豪宅巨头,砸下179.8亿,独吞分钟寺三宗宅地。
规划集生态涵养、商业配套、产业聚集区、教育配套等完整的商业住宅集群。具体为:
1.2万m²三甲医院:规划首都医科大学附属医院、北京大学附属医院、中国中医科学院分院等知名医疗资源。
5.8万m²教育用地:规划引进首师大附属中学,预计引入国际教育资源,开展国际合作,如英国布莱顿学校资源。
18万m²商超配套:规划拟打造如合生里、览秀城等30万㎡高端商业,引入大型商超主力店,形成集购物、餐饮、娱乐、休闲为一体的一站式商业中心。
自带3.5万m²主题运动公园、45万m²休闲绿地。
免责声明:文章内容来自互联网,本站仅提供信息存储空间服务,真实性请自行鉴别,本站不承担任何责任,如有侵权等情况,请与本站联系删除。